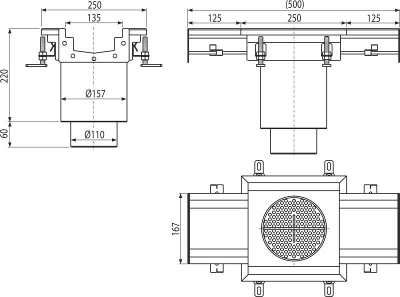
Siphon de sol box industriel intermédiaire 250×250-135, inox AISI 304

APR6-2211-135

Siphon anti-odeur d’eau50 mm
  • Pour évacuer l’eau depuis les grandes zones industrielles et autres activités commerciales à l’intérieur des bâtiments, par exemple les industries chimique et agroalimentaire
  • Pour évacuer de grandes quantités d’eau, également adapté aux longs trajets
  • Siphon en inox (traitement du matériau par décapage et passivation), ce procédé garantit la conservation des propriétés et de l’usage fiable de l’inox, même après plusieurs années
  • Tout le système est solidement ancré dans le béton via les pieds facilement réglables et ancrages latéraux
  • Débit élevé
  • Hauteur réglable dans la plage de 85–125 mm
  • Le joint utilisé assure un raccord entièrement étanche
  • Matériau du siphon : acier inoxydable 1,5 mm, DIN 1.4301
  • EN 1253-1
Quantité (emballage) 1 pcs
Quantité (palette) - pcs
Dimension (pièce) 500×280×250 mm
Poids (pièce) 5,5455 kg
Poids (emballage) 5,5455 kg
Poids (palette) - kg
  • Siphon
  • Joint 1 pc
  • Pieds réglables 4 pcs
  • Filtre à impuretés
  • Siphon anti-odeur
  • Kit de fixation
Product codeEANTechnical sheet
APR6-2211-1358595580573508Technický list